
一、预防楼板防裂措施示范
常见问题表现形式:
现浇板产生贯通性裂缝或上表面裂缝、现浇板外角部位处产生斜裂缝、现浇板沿预埋线管处产生裂缝、现浇板厚度偏薄、楼层房屋净高、层高不符合设计要求等。
标准处理措施:
1)在砼现浇楼板板跨度达到4.2m及以上跨度时,转角处设置放射形钢筋,钢筋的数量、规格不少于设计要求,长度大于板跨的1/3,且不小于1.5m。
2)模板支撑系统必须经过计算,除满足强度要求外,还必须有足够的刚度和稳定性,拆模必须满足砼强度拆模要求。
3)使用通长钢筋马镫筋,满足现浇楼板负弯矩钢筋的正确位置。采取防踩踏措施,防止钢筋被踩踏变形或移位。
4)板内预埋管线应置于板的中部1/3范围,当管线并列设置时,管道之间水平净距不应小于3d(d为管径)。当板内预埋管线处板面没有钢筋时,应增设Φ6@150(L=450)钢筋网带于板面。
5)严格控制现浇板厚度,在混凝土浇筑前应做好现浇板厚度的控制标识,每1.5m范围内宜设置一处,浇筑过程应进行插签检查厚度。
6)楼板混凝土强度未达到1.2MPa前,不得在其上踩踏或安装支架施工。
二、屋面及女儿墙防裂防渗漏措施示范
常见问题表现形式:
屋面泛水处开裂、渗漏;天沟积水、女儿墙开裂渗水;刚性防水层开裂渗漏等。
标准处理措施:
1)女儿墙宜设置钢筋混凝土构造柱,构造柱间距不大于4m,构造柱应伸至现浇混凝土压顶梁、板并一起整浇。女儿墙每隔12m设置温度缝 ,做法见下图。

2)砌体女儿墙必须砌筑密实,砌块强度等级不低于MU10,采用水泥砂浆砌筑,砂浆强度等级不低于M10,屋面女儿墙、烟道等砌体根部做钢筋混凝土翻边,高度不小于600mm且至少高出屋面实际完成面50mm。砌体女儿墙与混凝土交接处挂设钢丝网防止开裂。
3)天沟及女儿墙按规定留设溢水孔、排水口,排水口篦子用经久耐用的球形铸铁篦子,防止篦子损坏排水口堵塞。天沟排水坡度及排水管数量应满足排水流速要求。
4)严格控制屋面坡度和设缝长度,局部长度超过规范要求或宽度发生变化时,应按规范增设分格缝,设计应提供屋面构造要求和分缝平面图。
5)屋面、露台地漏汇水区,设置浅平排水沟,及时将水排出,杜绝屋面集水。
6)卷材防水屋面基层与女儿墙、山墙、天窗壁、变形缝、烟、井道等突出屋面结构的交接处和基层转角处,找平层均成圆弧形,圆弧半径应符合规范要求。
7)应严格控制保温材料的含水率。屋面排汽构造的排汽道应纵横贯通,并与大气连通的排汽出口相通,不得堵塞。穿过保温层的管壁应设排汽孔,设置在结构层上,且设在屋面坡度的上方,间格纵横交接的部位,排汽管应做防水处理;排汽道间距宜为6m,纵横设置,屋面面积每36㎡宜设一个排汽出口,应安装牢固,位置正确,封闭应严密。排汽管出汽口应防止雨水倒灌,且应进行保护,防止损坏。
8)铺设屋面隔气层和防水层前,基层必须干净、干燥,基层的分格缝要用密封材料嵌填密实;刚性防水层与基层、刚性保护层与柔性防水层之间应做隔离层。屋面细石混凝土保护层分隔缝,间距不宜大于4m。
9)伸出屋面的通气管周围抹成斜坡,立管做保护墩,防水层施工时另外加设附加层。加强过水孔处的砼或砂浆的捣固,达到密实不漏水程度。

三、墙体填充墙防裂措施示范
常见问题表现形式:
产生贯通性裂缝、外角部位产生斜裂缝、沿预埋线管产生裂缝。
标准处理措施:
1)后砌填充墙沿高均设置通长2Ø6@500mm~600mm的通长拉结筋与墙、柱拉结,锚入框架柱、剪力墙内长度为250mm。
2)不同基体材料交接处采取钉钢丝网等抗裂措施。钢丝网与不同基体的搭接宽度每边不小于 150mm。钢丝网片的网孔尺寸为10mmx 10mm,其钢丝直径不应小于0.7mm,应采用热镀锌电焊钢丝网,并宜采用先成网后镀锌的后热镀锌电焊网。钢丝网用钢钉或射钉加铁片固定,间距不大于300mm。
3)在填充墙上剔凿设备孔洞、槽时,先用切割锯沿边线切开,后将槽内砌块剔除,应轻凿,保持砌块完整,如有松动或损坏,应进行补强处理、剔槽深度应保持线管管壁外表面距墙面基层 15mm,并用M10水泥砂浆抹实,外挂钢丝网片两边压墙不小于150mm。
4)填充墙砌体分次砌筑。每次砌筑高度不超过1.5m,日砌筑高度不大于2.8m;灰缝砂浆应饱满密实,嵌缝应嵌成凹缝,禁止使用落地砂浆和隔日砂浆嵌缝。
5)填充墙砌筑接近梁板底时,留一定空间,至少间隔15d后,采用实心砌块斜砌,斜砌角度45º~60°。
6)填充墙砌体临时施工洞处在墙体两侧预留2Ф6@500拉结筋,补砌时润湿已砌筑的墙体连接处,补砌应与原墙接槎处顶实,并外挂钢丝网片,两边压墙不小于150mm。
7)消防箱、配电箱、水表箱、开关箱等预留洞上的过梁,应在其线管穿越的位置预留孔槽,不得事后剔凿,其背面的抹灰层满挂钢丝网片。
8)加气块马牙槎应按规范设置,先退后进(一退一进)。
9)砌体必须砌筑密实,砌块强度等级不低于MU10,砂浆强度等级不低于M10,应按要求设置钢筋混凝土构造柱,砌体与混凝土交接处挂设钢丝网防止开裂。


四、墙面抹灰防空鼓开裂措施示范
常见问题表现形式:
抹灰墙面易出现空鼓、脱落、开裂。
标准处理措施:
外墙抹灰:
1)墙面采用纯水泥浆掺5%108胶拍浆,表面饱和≥95%,拍浆成毛刺状。
2)加气混凝土砌块墙面需满挂Ф0.@12.7X12.7热镀锌钢丝网,射钉固定,射钉中距400mm;砼柱、梁面与砌体交接面挂同规格热镀锌钢丝网每侧伸出宽度不小于150mm,射钉固定,射钉中距400mm。
3)12厚1:3抗裂砂浆打底,扫毛或划出纹道(抗裂砂浆可掺0.9公斤聚丙烯纤维/立方米。
4)8厚1:3聚合物水泥防水砂浆抹面(内掺TC-02高效防水剂,掺量为水泥用量的10%)。
5)外墙涂料饰面或面砖。注:基层面处理应先将基层清扫干净,浇水湿润,水应渗入墙面内但墙面不能有明水。墙面需做分缝处理的,分格缝的位置及宽度应满足建筑立面图要求,分格缝采用塑料分隔条分隔,预埋在10厚水泥砂浆找平层内。
五、预防厕所等有防水要求房间防渗措施示范
常见问题表现形式:
管根、墙根、板周边等部位渗漏。
标准处理措施:
1)厨厕墙体防水层应沿墙四周上返,高出地面不小于200mm。管道根部、转角处、墙根部位应做防水附加层。
2)管道穿过楼板的洞口处封堵时应支设模板,将孔洞周围浇水湿润,用高于原设计强度一个等级的防渗混凝土分两次进行浇灌、捣实。管道穿楼板处宜采用止水节施工法。
3)对于沿地面敷设的给水、采暖管道,在进入有水房间处,沿有水房间隔墙外侧抬高至防水层上返高度以上,再穿过隔墙进入卫生间,避免破坏防水层。
4)地漏安装的标高应比地面最低处低5mm,地漏四周用密封材料封堵严密。门口处地面标高应低于相邻无防水要求房间的地面不小于20mm。
5)有防水要求的房间内穿过楼板的管道根部应设置阻水台,且阻水台不应直接做在地面面层上。阻水台高度应提前预留,保证高出成品地面20mm。有套管的,必须保证套管高度满足上口高出成品地面20mm。
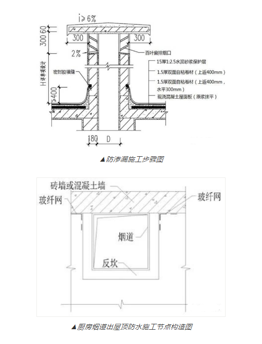
6)砌筑附墙烟(气)道时,使用烟道抽子来控制砂浆、混凝土和碎砖坠落烟道内;做内衬时应边砌边抹内衬,或做勾缝,确保烟(气)道的严密性。承口周边的砂浆打口必须严密,组装管道应固定牢固,上口应用灰袋纸等物临时密封好,以防止杂物掉入管内。烟道预留孔板上周边采用不低于C20细石砼,高度不小于100mm。
7)卫生间管根按规范设置套管或防水翼环;吊洞浇灌用不低于C20细石砼加膨胀剂捣密振实,分二次施工。
8)卫生间返边与主体结构同时施工。
9)套管和立管的缝隙填塞密实。
10)厨厕墙体严禁使用加气砼块,墙体防水高度为1.8m。卫生间、阳台、露台降板处防水工艺。



